
Lichtbeton
Compactstation GKP-S5
Compactstation met geteste SF6-gasvrije schakelinrichting
Uitvoering in lichtbeton of normaal beton
Productie volgens IEC 62271-202 (VDE 0670-202)
Geschikt voor toepassing met transformatoren tot 1.000 kVA
Getest op storingslichtbogen* met SF6-vrije middenspanningsschakelaars, bijvoorbeeld: Siemens 8DJH24 blue GIS, Schneider Electric RM AirSeT, ABB SafeRing Air / SafePlus Air
Geheel geïnstalleerd en aansluit gereed afgeleverd op de bouwplaats
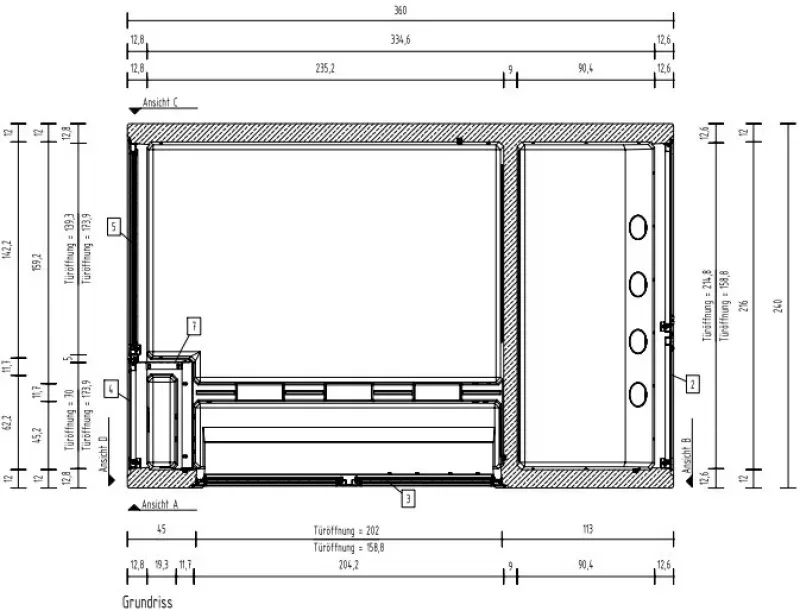
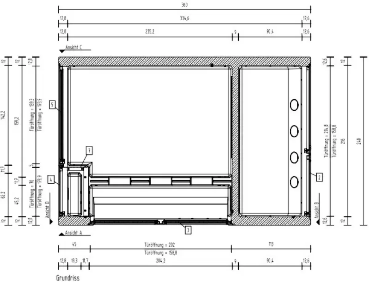
Specificaties
- Stationsafmetingen:
- 360 × 240 × 284 cm (plus 9 cm dakoverstek)
- Transformator:
- tot 1.000 kVA / max. 200 × 130 × 180 cm (L/B/H)
- Middenspanningsschakelaar:
- max. 5 velden / 190 × 170 × 85 cm (B/H/D)
- Laagspanningsverdeling:
- max. 200 × 170 × 40 cm (B/H/D) / max. 20 NS-stroken
- Telemetriesectie:
- max. 60 × 150 × 32 cm (B/H/D)
- Gewicht:
- Lichtbeton: 11,6 ton zonder elektrische uitrusting, 17,4 ton met elektrische uitrusting
- Hijspunten dak:
- 4 × RD 20
- Hijsankers Station:
- 4 × RD 42
*) Getest op boogontladingen of mogelijk om de resultaten van uitgevoerde boogontladingstests op te vragen.
Dit zou je ook kunnen interesseren
Meer compacte stations

GBUE 1600
Het veelzijdig inzetbare en ruimtebesparende Distributie- en Overdracht/Verdeelstation




HKP-E-Ü
Het perfecte overdrachtsstation met veel ruimte voor beveiligings- en telebesturingsapparatuur voor het »smart grid« van de toekomst.




