
Leichtbeton
Kompaktstation GBÜ-R3
Die stärkste
GRÄPER-Kompaktstation
Fertigung in Leichtbeton
Störlichtbodenqualifikation IAC A 20kA/1s (Ableitung nach DIN EN 62271-312).
Geeignet für die Ausrüstung mit Trafos bis 3.150 kVA und Schaltanlagenhöhen bis 190 cm.
Lieferung mit kompletter, anschlussfertiger elektrotechnischer Ausrüstung
Auf einen Blick
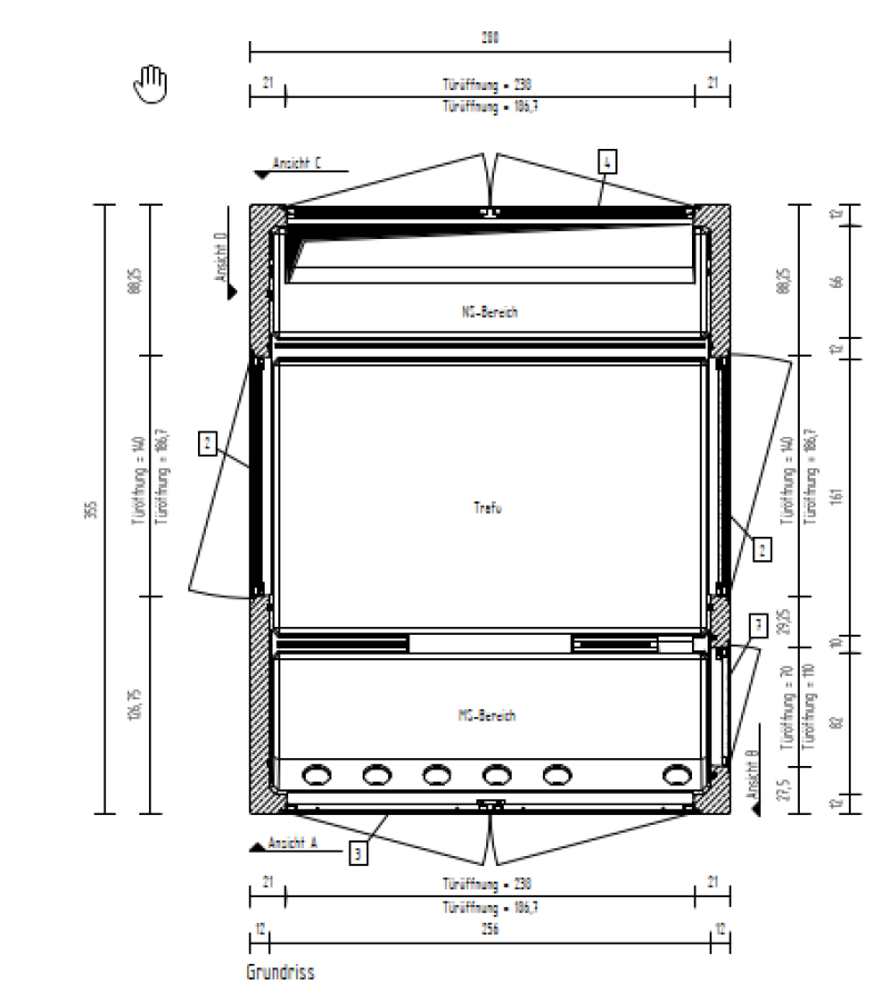
- Stationsmaße:
- 355 x 280 x 351 cm
- Transformator:
- bis 3.150 kVA / max. 220 x 130 x 210 cm
- MSA:
- max. 6 Felder / 228 x 192 x 80 cm
- NSHV:
- max. 235 x 192 x 65 cm / max. 23 NS-Leisten / Verrechnungsmessung möglich
- Fernwirkraum (optional):
- ca. 70 x 110 x 25 cm
- Gewicht:
- Leichtbeton: 10,7 t ohne E-Ausbau, ca. 27 t mit E-Ausbau
- Anhebeanker Dach:
- 4 x RD 24
- Anhebeanker Station:
- 4 x RD 42
*) Störlichtbogengeprüft bzw. Ableitung von durchgeführten Störlichtbogenprüfungen möglich.

Das könnte Sie auch interessieren
Weitere Kompaktstationen








HKP-E-Ü
Die perfekte Übergabestation mit viel Platz für Schutz- und Fernwirktechnik für das »Smart-Grid« der Zukunft.



