
SV-BKS
Typ G001
- Front Page
- Our offering
- Supply stations
- Walk-in supply stations
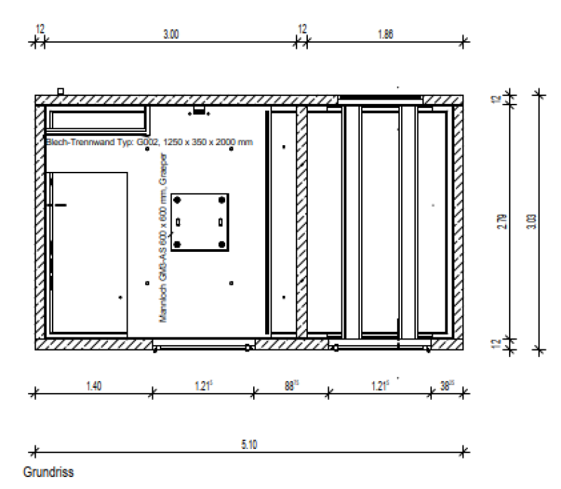
- 303 cm × 510 cm
Begehbare Schaltstation mit stirnseitigem Zugang und einer Schaltfeldgrösse bis max. 270 cm
Auf einen Blick
- Stationstyp:
- Schaltstation
- Stationsmaße:
- 310 x 270 x 325,7 cm
- Anzahl der Räume:
- 1
- MSA:
- max. 8 Felder / 270 x 90 x 200 cm
- zusätzliche Wandmontagefläche:
- 250 x 200 cm
- Anhebeanker Dach:
- 4 x RD 18
- Anhebeanker Station:
- 4 x 15 t KK
*) Störlichtbogengeprüft bzw. Ableitung von durchgeführten Störlichtbogenprüfungen möglich.


