
Advantages with a system
Walk-in supply stations.
- Front Page
- Our offering
- Supply stations
- Walk-in supply stations
Flexibly planned or ‘off the peg’ after all
Walk-in supply stations
We have three different product lines for walk-in station buildings. Our series stations are fully developed stations for electricity distribution, which we can deliver particularly quickly. This saves you a lot of planning and coordination work, as the layout of the stations has already been finalised. This means you can start coordinating the construction site at an early stage and involve other trades.
Our walk-in concrete stations from the Professional and Individual product lines can be equipped with different technical contents and for different areas of application, e.g. in electricity, gas and water distribution, telecommunications, energy storage, railway infrastructure and for industrial applications. They can be manufactured up to a size of 18 x 5 metres with a monolithic, oil- and water-impermeable tank. A combination of several stations is also possible.
A concrete floor or a raised system floor is available as an intermediate floor. The doors and grilles manufactured by GRÄPER are available in both aluminium and hot-dip galvanised steel.
We offer three product lines for our walk-in stations:
With our System Series, we offer completely prefabricated substation and building solutions for a wide range of applications, primarily in electricity distribution. The systems are planned through by our engineers and optimised for the respective application, e.g. as a switching station. The sizes and dimensions are already specified so that you only need to specify the colour of the plaster surface, the type of medium-voltage system and the low voltage. The GRÄPER System Series is characterised by extremely attractive delivery times. As a rule, the walk-in stations are available from stock. Transformer stations and station solutions for other applications such as PoP / TC stations are also available.

System Professional
The GRÄPER Professional system for stations from 3.6 to 12 metres in length covers almost all requirements and offers enormous variety and flexibility for a wide range of applications. It is available in five different widths from 2.54 to 3.63 metres, with clear room heights of 2.45 and 2.60 metres and with a choice of three clear basement heights of 0.68, 0.78 and 0.98 metres. The monolithic basement ensures oil-tightness. The Professional system is available with all types of intermediate floor (concrete floor, system floor, etc.). All external designs and realisation as a sandwich station are also possible. The doors and ventilation grilles are optimised for this series.

System individual
With the Individual system, you have complete freedom. Based on centimetre-precise planning by our experienced engineers and designers, a wide variety of roof shapes, external surfaces and lengths, widths and heights are possible. We also plan and manufacture large, customised building solutions and implement these in modular construction or as individual wall projects on site. We can manufacture concrete stations up to a size of 5 x 18 m with a monolithic, oil- and water-impermeable tank to the centimetre. Depending on your requirements, a combination of several stations is also possible.
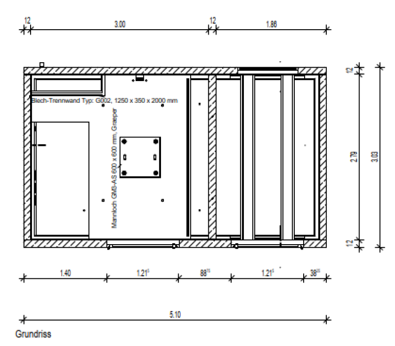
303 cm × 510 cm
Schaltstationen
SV-BKS Typ: G001
Begehbare Schaltstation mit stirnseitigem Zugang und einer Schaltfeldgrösse bis max. 270 cm

Our range of services
Customised solutions
Can't find what you're looking for among the compact stations and walk-in stations? Then contact us. We will advise you and are sure to find a customised solution. In addition to connecting your medium-voltage supply, we can also take care of your low-voltage distribution from 100 A to 6,000 A. You can find our further range of services here. Or why not design online? The station configurator will guide you to your compact or walk-in transformer station in just a few steps.

Compact stations for every purpose
Versatile
Compact stations
Find out more about our compact stations.






